Консультация
Консультация
Услуги
Услуги
Обучение
Обучение
Контакты
Цены
Работы
Работы
Цены
Контакты
Консультация
Визуализация
Дизайн интерьера
Обучение

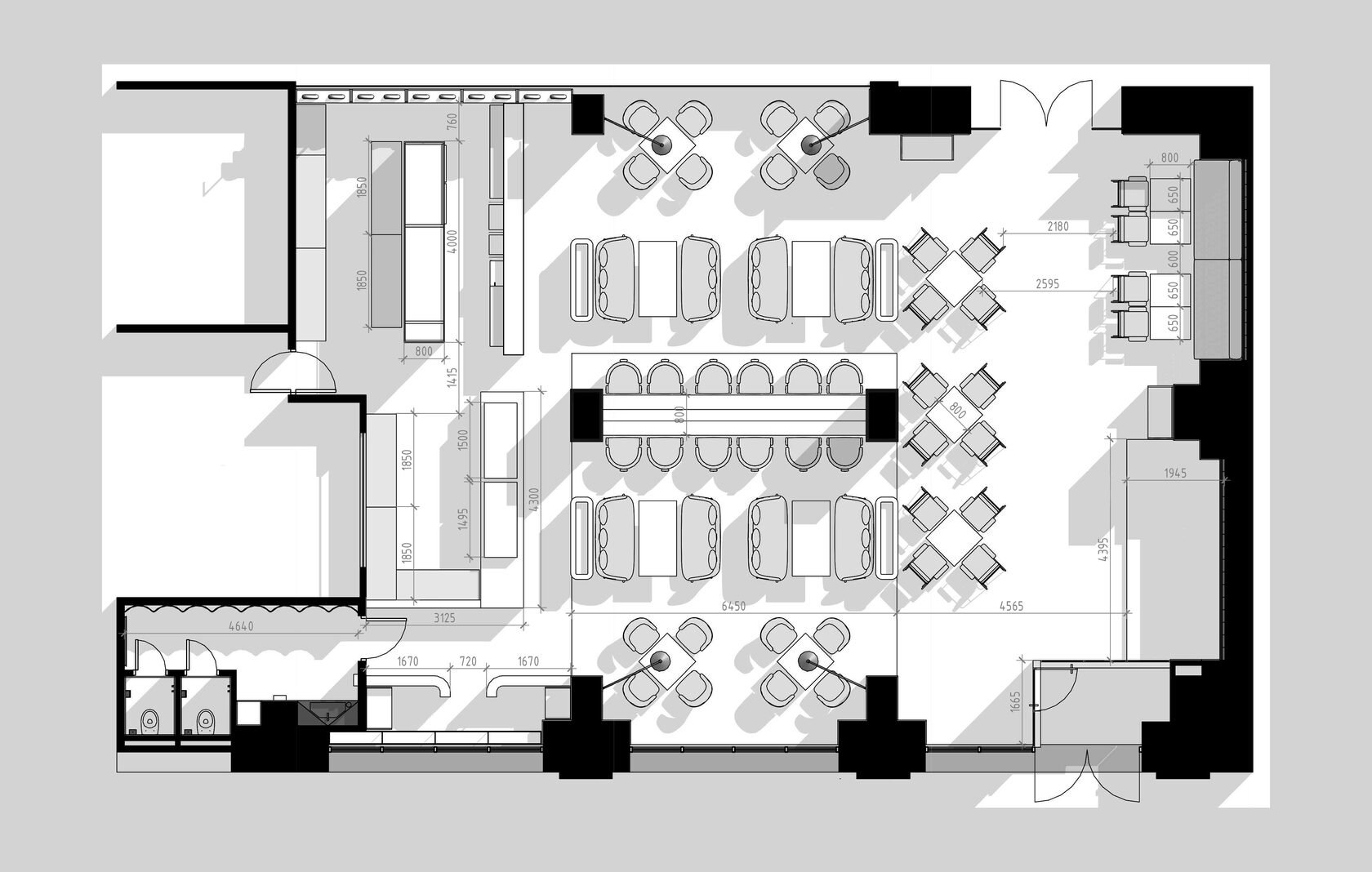
Гастро-ресторан Макарена

Оренбург, Россия
2021
Архитектор:
Антон Кузнецов
240 м²
Задачей было обновить существующий дизайн под новую концепцию, оставив пол, окна и вентиляцию. Потолок остаётся в техническом первозданном виде с последующей окраской. Большая часть мебели изготавливается по авторским эскизам. В качестве ключевого акцента заведения используется центральная композиция с длинным столом, колоннами и спиралевидным светильником.
Подписаться

ДРУГИЕ РАБОТЫ

Green coffee
Lebowsky pizza and bowling
Makarena
Дом в лесу
Cactus coffee
готовы к новому интерьеру?
Давайте создадим его вместе!
Жду вашего сообщения
Задать вопрос в Telegram
Задать вопрос в Telegram
Консультация
Консультация